Bản vẽ nhà mái Mansard đang trở thành lựa chọn được nhiều gia chủ quan tâm nhờ vẻ đẹp sang trọng và khả năng tối ưu không gian sống. Mỗi bản vẽ thể hiện rõ công năng khoa học, tính thẩm mỹ cao và giá trị sử dụng lâu dài.
Giới thiệu khái quát về bản vẽ nhà mái Mansard
Bản vẽ nhà mái Mansard đang tạo nên sức hút mạnh mẽ nhờ vẻ đẹp cổ điển Châu Âu đầy sang trọng. Từng đường nét trong bản vẽ nhà mái Mansard thể hiện sự tinh tế về tỉ lệ, công năng và thẩm mỹ, giúp người xem dễ dàng hình dung không gian sống đẳng cấp và bền vững theo thời gian.

Khám phá tại đây: Phối cảnh nhà mái Mansard nổi bật phong cách châu Âu
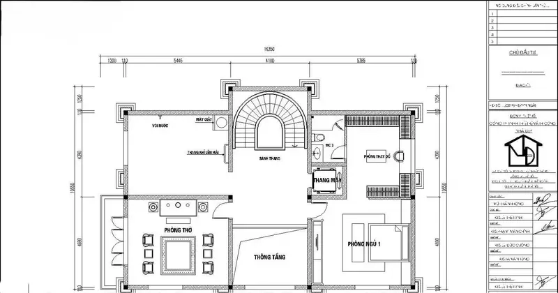
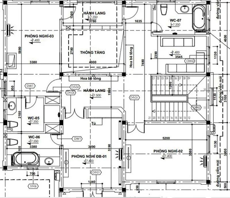
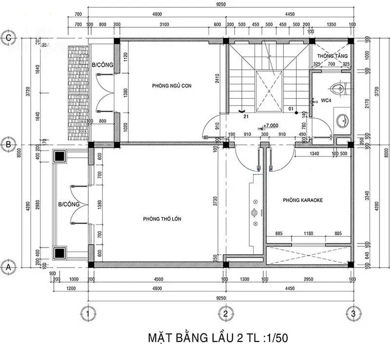
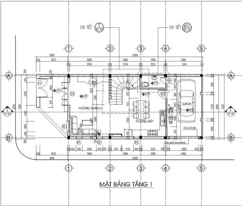
Tổng hợp những ảnh về bản vẽ nhà mái Mansard tuyệt đẹp
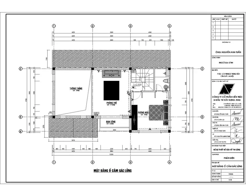
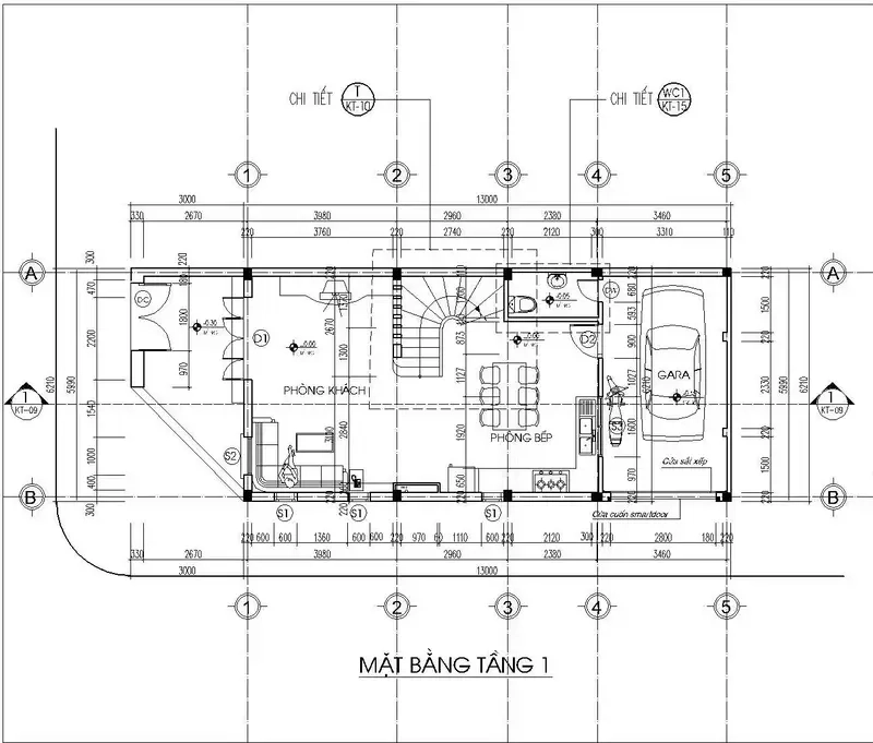
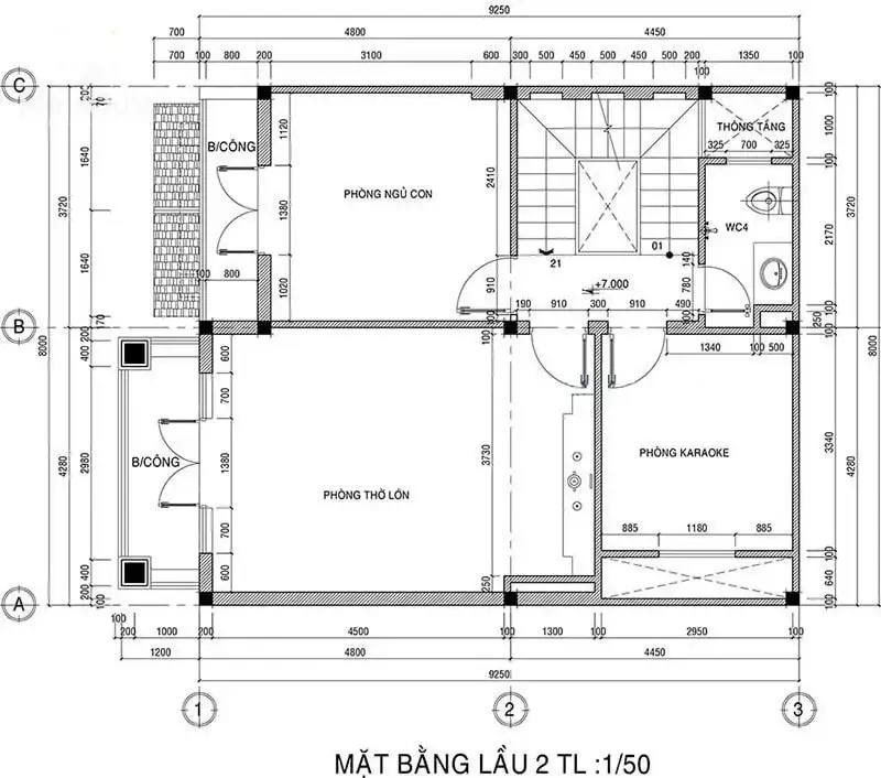
Những hình ảnh tổng hợp về bản vẽ nhà mái Mansard mang đến cảm giác choáng ngợp bởi kiến trúc bề thế và mái vòm đặc trưng. Qua từng bản vẽ nhà mái Mansard, người xem cảm nhận rõ sự kết hợp hài hòa giữa nghệ thuật cổ điển và giải pháp thiết kế hiện đại.













Khám phá tại đây: Nhà mái Mansard Châu Âu giải pháp nâng tầm không gian sống
Kết luận
Bài viết giúp làm rõ giá trị thẩm mỹ và ứng dụng thực tế của bản vẽ nhà mái Mansard qua góc nhìn hình ảnh. Cá nhân tôi cho rằng đây là lựa chọn đáng đầu tư cho không gian sống sang trọng. Hãy để lại ý kiến hoặc chia sẻ cảm nhận của bạn.